广州中建.凤榕台售楼处电话_营销中心_欢迎您|地址在哪里?开盘时间|最新价格动态-位置详情电话咨询
扫描到手机,新闻随时看
扫一扫,用手机看文章
更加方便分享给朋友
项目所属的板块为华南首个科教高地--广州科教城,属于产居一体,体量约为6个大学城,规划14.47平方公里,总投资约1800亿!未来预计进驻超30万师生。


教育配套:自身配建公立18班幼儿园,对口保利水木配建的公立24班科教城小学,2023年9月已开学,2024年9月开到2年级,完全可以做到目送式的教育。

地铁1站增城万达,2站萝岗万达,能够满足日常生活需求。
全方位医疗:科教城三甲医院(规划)、广州市妇女儿童医疗中心(增城)、增城中医医院、南方医院增城分院二期等优质医疗资源。
生活配套:项目自带有地下商业体“21·芯天地”以及约3600㎡商业街,周边几大小区底商成熟,生活气息很浓厚。

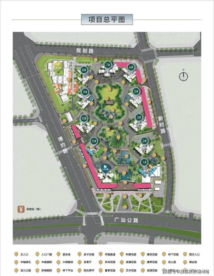
在售楼栋+户型:中建·凤榕台整个项目由10栋住宅和1栋人才公寓组成,涵盖7栋33层住宅、1栋26层住宅和人才公寓、1栋31层住宅以及1栋44层住宅。
临湖而居,毗邻赛宝公园,周边规划有叠翠湖生态区、东湖公园、西福河湿地公园及15万㎡的科教城中轴公园,坐拥得天独厚的生态景观资源。
广州中建.凤榕台营销中心电话:400-1500-885转999售楼处直销,欢迎来电咨询楼盘、看房请提前预约
广州中建.凤榕台售楼处电话:400-1500-885转999售楼中心【24小时电话】楼盘项目全面介绍,楼盘最低价格和最新优惠折扣,包含楼盘简介、销售中心电话、营销中心电话、价格折扣详情、小区户型介绍、营销中心位置、区位优势、学校、交通、周边商业配套、户型图等楼盘最新详情
免责声明:部分信息来源于网络,如果侵权,请联系及时删除
声明:本文由入驻焦点开放平台的作者撰写,除焦点官方账号外,观点仅代表作者本人,不代表焦点立场。


