广州地铁地产云筑上品售楼处电话地址最新价格优惠折扣学校配套新规产品使用率
扫描到手机,新闻随时看
扫一扫,用手机看文章
更加方便分享给朋友
广州地铁地产云筑上品坐落于白云广州设计之都腹地 集地铁、教育、商业等多元优质配套于一身 赋能日常。开启从容舒居新方式。广州地铁地产以诚建城,与广州共生共荣。作为城市TOD开发先行者,广州地铁地产杰出品牌影响力和客户凝聚力,以及对匠心的传承、对TOD开发模式的不断升级、对广大业主的贴心服务,皆是吸引众多客户置业的因素。
设计之都 千亿极核聚集
每一座城市,皆以城芯为焦点,由此资源聚集。广州设计之都依托十四五战略规划,目标为打造现代服务业集聚区、粤港澳大湾区设计产业国际品牌集聚地,开园以来封顶大楼30多栋、建成产业载体超70万㎡、入驻优质企业超300家,2023年园区年产值达650亿。
不仅如此,园区核心区域内建筑设计、工业设计、时尚设计等为代表的产业集群已初具规模,将成为设计创新活力竞相迸发、设计精英荟萃集聚的沃土,未来发展势不可挡。
轨道枢纽 繁华生活磁场
广州地铁地产·云筑上品屹立于设计之都中区板块,约200米直达14号线鹤南站(在建),约1公里便能抵达2号线黄边站,同时占据城市多条主干道交汇区位,30分钟内直达广州白云机场。
居于此,下楼即可通达全城,坐享白云繁华经济圈的经济辐射与带动,兼有千亿设计之都配套,轻松链接潮流生活主场,享万象精彩。
丰盛生活 15分钟生活圈
一处品质的住所,向来是城市资源的聚合与便利生活的塑造。广州地铁地产·云筑上品近享约5.7万㎡设计之都时光汇,目前已引入超120家知名商业品牌,汇聚吃喝玩乐购多元业态,同时3公里范围内白云汇、金铂广场、云门NEW PARK等大型商圈荟萃,日常消费需求一站式满足。
教育主场 出家门即校门
除了让生活更便捷的繁华之外,给孩子书香为伴的成长环境,更是每一对父母的期望。广州地铁地产·云筑上品对口省级黄边小学,项目人户一致可就读,同时未来规划九年一贯制学校。
以人为本 儿童友好社区
让儿童在城市环境中重新感知自然、让大孩子和小孩子都能感受到关怀,一直是广州地铁地产·云筑上品社区考量的重中之重。
项目原生态保留扎根于地块上的大榕树,并以榕树为主题打造一轴六重景观园林,全区自然贯穿“1米高度视角”以及15分钟儿童友好生活圈理念,构建儿童友好文化室、四点半学堂以及一米菜园等多功能活动场地,让不同年龄段的孩子都能在自然中成长。
至高实用 精筑改善所需
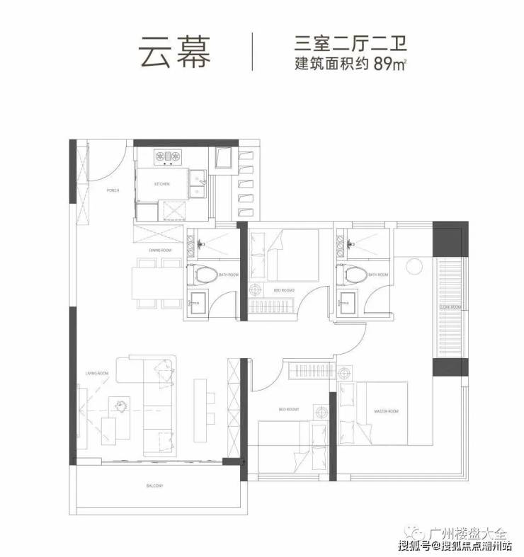
因白云而生,因白云而制。广州地铁地产·云筑上品基于白云客群人居习惯,突破传统空间规划格局,打造出区域中难得一见的创新迭代宽境户型。
项目首开首开A1栋火爆热销中,建面约88-143㎡宽境三四房,串联融合多重生活场景演绎不同功能的百变X空间,实现全家人温情共享互动。
广州地铁地产·云筑上品以匠心打造居家生活的每一处细节,每一寸空间都得到高效利用,满足家人对生活的“享”法,为白云带来面面俱到的品质生活体系以及全新空间居住观与儿童友好社区,成为众多置业者的首选。
免责申明:文章内容综合来源于网络、只作分享,版权归原作者所有!!如有侵权,请联系我们,我们将第一时间处理!
声明:本文由入驻焦点开放平台的作者撰写,除焦点官方账号外,观点仅代表作者本人,不代表焦点立场。


