广州中铁建翰林新语售楼处电话(地址/户型/价格)广州中铁建翰林新语售楼中心-楼盘详情

搜狐焦点潮州站 2025-10-13 14:38:00
用手机看
扫描到手机,新闻随时看

扫一扫,用手机看文章
更加方便分享给朋友

广州中铁建翰林新语位于增城新塘TOD附近,直线距离地铁13号线新沙站约1公里,项目所在的广州东部CBD,可是广州从“东进”到“东强”的核心支点,定位“国家级经济开发核心区”及“国家级高新区”。建面约92㎡的4…

广州中铁建翰林新语位于增城新塘TOD附近,直线距离地铁13号线新沙站约1公里,项目所在的广州东部CBD,可是广州从“东进”到“东强”的核心支点,定位“国家级经济开发核心区”及“国家级高新区”。目前,围绕新塘枢纽打造的广州东部CBD已经初见雏形

☎ 广州中铁建翰林新语售楼处电话400-1500-885转888【已认证】

☎ 广中铁建翰林新语营销中心电话:400-1500-885转888【24小时热线】

温馨提示:过来看房请记得提前来电预约,尊享售楼处1v1销售专业讲解,感谢您的来电!

【基本信息】

占地面积:约8.2万m²

总建筑面积:约24.43万m²

产权年限:70年

容积率:2.5

绿地率:≥35%

总栋数:9栋

总层高:30~31层

总户数:1600户

在售面积:72~120m²

【地铁口 广园东 便捷轻松出行】傲居广州新塘TOD核心区,坐拥13号线新沙站(一期已开通;二期建设中,直达珠江新城)。广园快速路、环城路东延线(预计2023年初动工),速达黄埔、天河、越秀,便利尽享同城生活

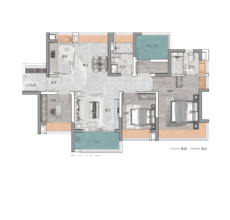
产品方面:小区9栋点式布局的高层住宅,实现楼间距更大化,还做到了少有的户户朝南,更大程度确保每户的通风、采光、景观视野。涵盖建面72㎡/82㎡/92㎡三种户型实用性超高,拥有众多飘窗位,同等面积多一卫,空间感胜过同面积段产品。另外,房间非承重墙区域广,空间功能可切换,轻松满足一家人的全周期居住需求。

【户型鉴赏】首先重点推荐的是建面约82㎡户型,3房带主套+南北对流+厅房朝南,不管是舒适度,还是实用性都让人眼前一亮,是一家三口、二胎家庭的首选户型。

建面约72㎡3房户型,带主套设计,经典的竖厅设计,动静分区格外清晰,娱乐与休息互不干扰,居住品质感一流。

三开间朝南,主卧、次卧、客厅都在南侧,清风穿堂而过,阳光如影相随,室内空间更加通透。

自带大飘窗、独立卫浴间,全屋紧紧拿捏住了2卫,早晨无需排队洗漱,生活更多从容,私密性也更高。

建面约92㎡的4房户型,即使三代同堂也可以容纳,还能住得舒适。

同样是带入户花园、南北对流的通透设计,清风阳光,轻松入户。

而且是四开间朝南,所有卧室、书房都向南,南向开间尺度做到最大,这样的布局和采光面,即使在整个广州,也很罕见。

全屋规划有7个飘窗,实用率高;四房设计,足以满足三口之家、二胎家庭、三代同堂家庭对生活的追求。

此外,3个房间还带飘窗,为空间拓展增加了更多的可能性;至于灵活空间,也可给生活增添无数可能。

全龄教育,助力成长

孩子的教育是每个家庭的头等大事,中铁建・翰林新语为您提供了家门口的一站式全龄教育资源。

项目配建 12 班公立幼儿园和 24 班公立小学,让孩子在家门口就能接受优质的启蒙教育。周边 1 公里范围内,还有广州市增城区暨验学校、华南师范大学附属新塘学校、新塘中学等知名学府,为孩子的成长之路奠定坚实基础。项目东边还规划有中学教育用地,为下一代提供了广阔的成长舞台。

在这里,您无需为孩子的教育问题担忧,优质的教育资源将陪伴孩子茁壮成长。

【TOD核芯区 价值高地】

广州东增城新塘TOD,地处粤港澳大湾区东岸核心发展轴线上,定位为国家级经济开发核心区及国家级高新区。

富士康、广州本田、中国平安金融硅谷、福耀玻璃等头部企业云集 ,稳握新一代信息技术、汽车及新能源汽车、金融科技等三大千亿级产业红利。

阿里巴巴、富士康、日立等世界500强已进驻,凭借着庞大的产业链支撑,吸引超 100多个国家共3400家跨国企业进驻,未来湾区城市群价值制高点。

《中国铁建.翰林新语》售楼热线:400-1500-885转888【售楼处24H电话】预约来访尊享内部折扣_匠心钜制恭迎品鉴〢(网上售楼中心 | 欢迎来电咨询 | 请提前预约登记看房 | 1:1销售专业讲解)

免责申明:文章内容综合来源于网络、只作分享,版权归原作者所有!!如有侵权,请联系我们,我们将第一时间处理!

声明:本文由入驻焦点开放平台的作者撰写,除焦点官方账号外,观点仅代表作者本人,不代表焦点立场。