首页:广州天河联投·文津府售楼处网站_楼盘电话位置学校医院配套电话咨询详情@2025.10.16售楼处AI热搜
扫描到手机,新闻随时看
扫一扫,用手机看文章
更加方便分享给朋友
顾名思义,松弛不是慵懒、放松、随意,更不是懒散、松垮,而是一种轻盈自在的状态,对生活充满掌控。那么联投·文津府是如何表达的呢?
联投·文津府,抛弃常见的入户设计,以豪宅的标准,打造双入户大堂,首层入户大堂挑高达到7米,营造宏伟大气的空间感,让居者归家时感受到尊崇归家礼遇体验。
全明精装地下车库,通过天花照明、采光井的自然光线和高级亮色调对地下空间进行了处理,细致到每一个角落都有明亮的灯光覆盖,无论在何时归家,总有一束光为居者点亮,带着一身的温暖与光回家。

联投·文津府关于美好生活的提案:联投TOP级印系 天河奢装天花板!
据报告显示,一辆汽车的使用寿命大约15年,而一栋房子可以使用数十年甚至上百年。但目前的情况却不乐观,比如,新房装修后,想住进去但却不得不被“甲醛”劝退,住“烂”了才发现,甲醛的释放速度远远快于通风的速度,令人不安;再如,潮湿的环境会让人感到特别不舒服,隔音效果差会导致身体免疫力下降……
所有枝繁叶茂,都源坚韧的初心。联投·文津府,精心打磨每一处空间场景,永不过时的公建化玻璃幕墙立面,阳光下,楼体熠熠生辉,更为生活创造更大的景观面与采光面,营造高质量、有温度的生活方式。
全屋配备大金中央空调,营造健康的恒温空间,快速制冷、制热,体感指数更高,提供舒适睡眠环境。室内装配国际一线品牌新风系统,层层过滤PM2.5,循环净化室内空气,保持温湿平衡,呵护家人的健康。
140㎡和风户型装标视频
全屋高定精装,赋予城市精睿更多生活礼遇。来自德国的世界一线博世厨电五件套(或相近档次品牌),包含冰箱、油烟机、洗碗机、消毒机、蒸烤一体机等;国际一线卫浴五金品牌的杜拉维特、汉斯格雅(或相近档次品牌)……舒心的惬意日常,静享更为动人的烟火时光。

联投TOP级印系 天河生态天花板!
一步繁华、一步繁花的公园式生活方式,备受人们的追捧。身处繁华都市,一处公园,便成为城市生活中的奢侈品。而联投·文津府三面环山,270°被绿意包裹着。
这里的原生态山体,未来将打造成为不同特色的公园搬到“家门口”,外部公园环绕,内部打造体育公园、山体公园双公园+园林;社区内保留6棵原生古榕,既是城市精神源址的留存,又是千年文脉的守望,更是为老广州人的生活的守护。
建筑、人与自然融合共生,打造双中心式生活院落,并以一廊五院的空间,营造出了粤式全龄生活功能圈。在家楼下,便能拥有与日常生活融为一体的休闲度假体验。

公园,不只是公园,美好生活不止一种。联投·文津府约20米咫尺执信中学天河校区,原生古榕与成长于榕下的百年执信相映生辉,成就项目人文厚蕴,以高质量的教育密度赋能孩子成长。
把幼儿园&托儿所搬到小区楼下,与内部打造的双公园和园林充分融合,校园就生长在公园里,造一方都市自然人文大境,环境如诗如歌,未来理想生活宛如画卷逐渐展开。
人居迭新的真意,在于建筑与城市、生活与自然、舒适与美学的高度契合,联投·文津府,超脱天河旧经验,以美好执笔,起序天河理想人居新篇,刷新天河人的期待!
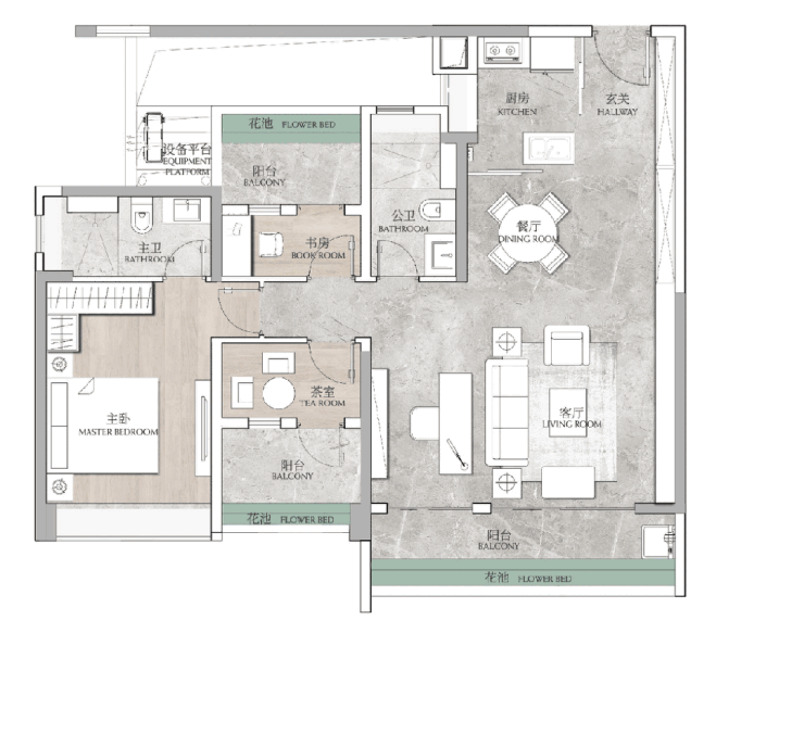
项目坚持真正的多开间朝南,最小户型的108㎡也能做到四开间,建面约165㎡更是直接上了五面宽朝南。

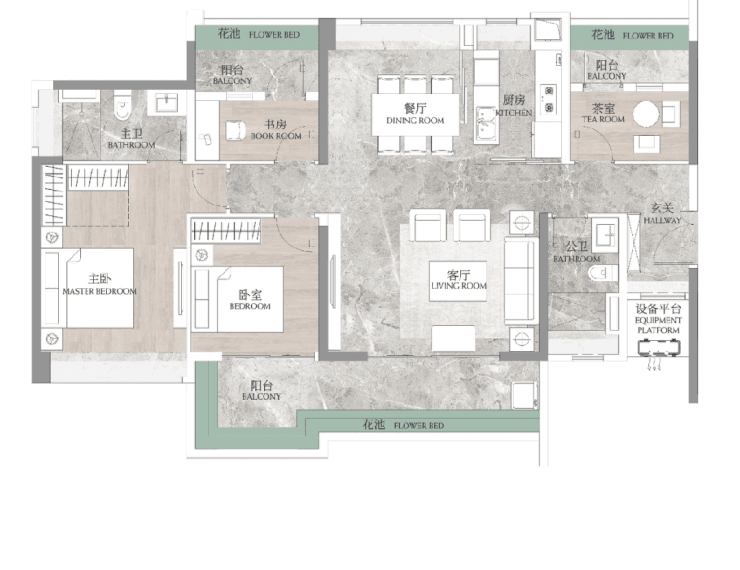
128㎡做4房,南北对流,餐客厅的空间都相当的大,而且还设计了L型宽景阳台,景观面更好。

以主力户型约140㎡四房为例,该户型本身拥有约43㎡客餐厅,平时可用作家庭主人的超大公区空间。

165㎡就不用多说,双阳台、双主套配置,纯改善享受型。

声明:本文由入驻焦点开放平台的作者撰写,除焦点官方账号外,观点仅代表作者本人,不代表焦点立场。


